OK01 – Obytný kontejner 20'
Označení: OK01 Obytný kontejner 20'
Rozměry /dxšxv/: 6055 x 2435 x 2820 mm / 2500 mm
Popis: základní výbava včetně elektroinstalace
1x dveře vnější, průchozí rozměr 810x1970 mm
1x okno 1200x1200 mm / otevíravé, sklopné
1x elektroinstalace, vč. topení
OK02A – Obytný kontejner 20', typ A
Označení: OK02A Obytný kontejner 20', typ A
Rozměry /dxšxv/: 6055 x 2435 x 2820 mm / 2500 mm
Popis: základní výbava včetně elektroinstalace
1x dveře vnější, průchozí rozměr 810x1970 mm
2x okno 900x1200 mm / otevíravé, sklopné
1x elektroinstalace, vč. topení
OK02B – Obytný kontejner 20', typ B
Označení: OK02B Obytný kontejner 20', typ B
Rozměry /dxšxv/: 6055 x 2435 x 2820 mm / 2500 mm
Popis: základní výbava včetně elektroinstalace
1x dveře vnější, průchozí rozměr 810x1970 mm
2x okno 900x1200 mm / otevíravé, sklopné
1x elektroinstalace, vč. topení
OK02C – Obytný kontejner 20', typ C
Označení: OK02C Obytný kontejner 20', typ C
Rozměry /dxšxv/: 6055 x 2435 x 2820 mm / 2500 mm
Popis: základní výbava včetně elektroinstalace
1x dveře vnější, průchozí rozměr 810x1970 mm
1x okno 1800x1200 mm / otevíravé, sklopné
1x elektroinstalace, vč. topení
OK03 – Obytný kontejner 20'
Označení: OK03 Obytný kontejner 20'
Rozměry /dxšxv/: 6055 x 2435 x 2820 mm / 2500 mm
Popis: obytný kontejner se zádveřím, základní výbava včetně elektroinstalace
1x dveře vnější, průchozí rozměr 810x1970 mm
1x dveře vnitřní, průchozí rozměr 800x1970 mm
1x okno 1200x1200 mm / otevíravé, sklopné
1x elektroinstalace, vč. topení
OK04 – Obytný kontejner 20'
Označení: OK04 Obytný kontejner 20'
Rozměry /dxšxv/: 6055 x 2435 x 2820 mm / 2500 mm
Popis: obytný kontejner se zádveřím, základní výbava včetně elektroinstalace
1x dveře vnější, průchozí rozměr 810x1970 mm
1x dveře vnitřní, průchozí rozměr 800x1970 mm
1x okno 1200x1200 mm / otevíravé, sklopné
1x elektroinstalace, vč. topení
OK05 – Obytný kontejner 20'
Označení: OK05 Obytný kontejner 20'
Rozměry /dxšxv/: 6055 x 2435 x 2820 mm / 2500 mm
Popis: obytný kontejner dělený, základní výbava včetně elektroinstalace
2x dveře vnější, průchozí rozměr 810x1970 mm
2x okno 900x1200 mm / otevíravé, sklopné
1x elektroinstalace, vč. topení
OK06 – Obytný kontejner 10'
Označení: OK06 Obytný kontejner 10'
Rozměry /dxšxv/: 3000 x 2435 x 2820 mm / 2500 mm
Popis: základní výbava včetně elektroinstalace
1x dveře vnější, průchozí rozměr 810x1970 mm
1x okno 1200x1200 mm / otevíravé, sklopné
1x elektroinstalace, vč. topení
OK06VR – Obytný kontejner 10' - vrátnice
Označení: OK06VR Obytný kontejner 10' - Vrátnice
Rozměry /dxšxv/: 3000 x 2435 x 2820 mm / 2500 mm
Popis: Obytný kontejner - vrátnice, bez zádveří, základní výbava včetně elektroinstalace
1x dveře vnější, průchozí rozměr 810x1970 mm
1x okno 1800x1200 mm / otevíravé, sklopné + fixní
2x okno 1200x1200 mm / otevíravé, sklopné
1x elektroinstalace, vč. topení
OK07 – Obytný kontejner 15'
Označení: OK07 Obytný kontejner 15'
Rozměry /dxšxv/: 4500 x 2435 x 2820 mm / 2500 mm
Popis: základní výbava včetně elektroinstalace
1x dveře vnější, průchozí rozměr 810x1970 mm
1x okno 1200x1200 mm / otevíravé, sklopné
1x elektroinstalace, vč. topení
OK08 – Obytný kontejner 20’
Označení: OK08 Obytný kontejner 20'
Rozměry /dxšxv/: 6055 x 3000 x 2820 mm / 2500 mm
Popis: základní výbava včetně elektroinstalace
1x dveře vnější, průchozí rozměr 810x1970 mm
1x okno 1800x1200 mm / otevíravé, sklopné
1x elektroinstalace, vč. topení
OK09 – Obytný kontejner 15'
Označení: OK09 Obytný kontejner 15'
Rozměry /dxšxv/: 4000 x 3000 x 2820 mm / 2500 mm
Popis: základní výbava včetně elektroinstalace
1x dveře vnější, průchozí rozměr 810x1970 mm
1x okno 1200x1200 mm / otevíravé, sklopné
1x elektroinstalace, vč. topení
OK10 – Obytný kontejner s WC
Označení: OK10 Obytný kontejner 20' s WC
Rozměry /dxšxv/: 6055 x 2435 x 2820 mm / 2500 mm
Popis: Obytný kontejner s WC, základní výbava včetně elektroinstalace
1x dveře vnější, průchozí rozměr 810x1970 mm
1x dveře vnitřní, průchozí rozměr 800x1970 mm
1x okno 1200x1200 mm / otevíravé, sklopné
1x okno 600x600 mm / sklopné
1x kabinka WC, 1x WC keramické, 1x malé umyvadlo
1x elektroinstalace, vč. topení
OK11 – Obytný kontejner s WC
Označení: OK11 Obytný kontejner 20' s WC
Vnější rozměry /dxšxv/: 6055 x 3000 x 2820 mm / 2500 mm
Popis: 2x Kancelář se společným WC, základní výbava včetně elektroinstalace
1x dveře vnější, průchozí rozměr 810x1970 mm
2x dveře vnitřní, průchozí rozměr 800x1970 mm
2x okno 1200x1200 mm / otevíravé, sklopné
1x okno 600x600 mm / sklopné
1x kabinka WC, 1x WC keramické, 1x malé umyvadlo
1x elektroinstalace, vč. topení
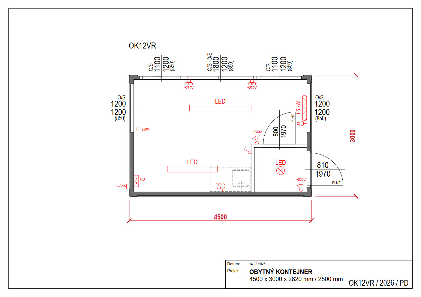
OK12 – Obytný kontejner - vrátnice
Označení: OK12 Obytný kontejner - Vrátnice
Rozměry /dxšxv/: 4500 x 2435 x 2820 mm / 2500 mm
Popis: Obytný kontejner - vrátnice, se zádveřím, základní výbava včetně elektroinstalace
1x dveře vnější, průchozí rozměr 810x1970 mm
1x dveře vnitřní, průchozí rozměr 800x1970 mm
2x okno 1200x1200 mm / otevíravé, sklopné
2x okno 1100x1200 mm / otevíravé, sklopné
1x okno 1800x1200 mm / otevíravé, sklopné
1x elektroinstalace, vč. topení
OK13 – Obytný kontejner
Označení: OK13 Obytný kontejner
Rozměry /dxšxv/: 7500 x 3000 x 2920 mm / 2600 mm
Popis: prodloužený kontejner se zvýšenou vnitřní výškou, základní výbava včetně elektroinstalace
1x dveře vnější, průchozí rozměr 810x1970 mm
1x okno 1800x1200 mm / otevíravé, sklopné
1x elektroinstalace, vč. topení
OK14 – Obytný kontejner
Označení: OK14 Obytný kontejner
Rozměry /dxšxv/: 9000 x 3000 x 2820 mm / 2500 mm
Popis: prodloužený kontejner se standardní vnitřní výškou, základní výbava včetně elektroinstalace
1x dveře vnější, průchozí rozměr 810x1970 mm
1x okno 1200x1200 mm / otevíravé, sklopné
1x elektroinstalace, vč. topení
OK15 – Obytný kontejner
Označení: OK15 Obytný kontejner
Rozměry /dxšxv/: 6055 x 4000 x 2920 mm / 2600 mm
Popis: prodloužený kontejner se zvýšenou vnitřní výškou, základní výbava včetně elektroinstalace
1x dveře vnější, průchozí rozměr 810x1970 mm
1x okno 1800x1200 mm / otevíravé, sklopné
1x elektroinstalace, vč. topení
AKCE 03-2026 – Obytný kontejner 20'
Označení: AKCE 03-2026 Obytný kontejner 20'
Rozměry /dxšxv/: 6055 x 2435 x 2620 mm / 2300 mm
Popis: základní ekonomické provedení, bez elektrického topení, jen se zásuvkou pro topení, včetně elektroinstalace
1x dveře vnější, průchozí rozměr 810x1970 mm
1x okno 900x1200 mm / otevíravé, sklopné
1x elektroinstalace, bez topení
OBYTNÉ KONTEJNERY, KANCELÁŘSKÉ KONTEJNERY
Obytné kontejnery jsou základním stavebním kamenem moderní modulární výstavby. Tvoří novou samostatnou alternativu ve stavebnictví.
Naše společnost vyrábí obytné kontejnery zakázkovým způsobem, podle požadavků svých odběratelů.
Není problém dodat obytný kontejner ve standardním i v naprosto netypickém provedení.
Obytné kontejnery se nejčastěji uplatní jako kanceláře, jednací místnosti, šatny, vrátnice, recepce, rekreační zařízení, chaty, ubytovny.
Naše společnost nabízí obytné kontejnery v provedení
- standardní i netypizované rozměry
- opláštění z trapézového pozinkovaného plechu nebo hladného pozinkovaného plechu
- přiznané i nepřiznané ocelové rámy kontejneru
- vnitřní obložení z dřevotřískové desky nebo sádrokartonu
- sanitární vybavení
- volitelná elektroinstalace
- vytápění konvektorem, akumulačními kamny, elektrickým nebo plynovým kotlem
- centrální rozvaděč doplněný o požadované instalované zařízení
(přepěťová ochrana, automatika pouličního osvětlení, příprava pro docházkové a evidenční systémy , apod.)
- rozvody pro kamerové systémy
- rozvody datových sítí
- instalace kabelových kanálů
- volitelné barevné provedení
- zastřešení vstupních prostor, pulty
- vybavení zařizovacím nábytkem (stoly, skříně), vestavěnou kuchyní na míru
Dneska vyberu, do měsíce mám
Nespornou výhodou je rychlost realizace. V řádech několika týdnů je možné postavit domeček, vrátnici, ubytovnu, restauraci, školu či administrativní budovu. Stejně tak rychle lze pak realizovanou stavbu demontovat a přesunout na jiné místo. Všechny místnosti a zařízení zůstanou zachovány, tak jak jste je před pár týdny opustili.
Naše společnost nabízí svým zákazníkům individuální přístup k řešení svých požadavků. Pakliže se bojíte na něco zeptat, u nás nemusíte. Těšíme se na setkání s Vámi.
VŠEOBECNÝ TECHNICKÝ POPIS STANDARDNÍHO PROVEDENÍ KONTEJNEROVÉHO MODULU
OBYTNÝ KONTEJNER / KANCELÁŘSKÝ KONTEJNER
Základní technické údaje:
Standardní rozměry modulu obytného kontejneru:
| Kontejnerový modul 6055x2435x2820mm/2500mm | |
| Délka: | 6055 mm venkovní / 5835 mm vnitřní |
| Šířka: | 2435 mm venkovní / 2215 mm vnitřní |
| Výška: | 2820 mm venkovní / 2500 mm vnitřní, standardní |
| 2620 mm venkovní / 2300 mm vnitřní, snížená | |
| Hmotnost: | cca do 2500 kg |
| Kontejnerový modul 6055x3000x2820mm/2500mm | |
| Délka: | 6055 mm venkovní / 5835 mm vnitřní |
| Šířka: | 3000 mm venkovní / 2780 mm vnitřní |
| Výška: | 2820 mm venkovní / 2500 mm vnitřní, standardní |
| 2620 mm venkovní / 2300 mm vnitřní, snížená | |
| Hmotnost: | cca do 3000 kg |
Vnitřní rozměry obytného kontejneru jsou uváděny pro standardní tloušťky použité tepelné izolace stropu / stěny / podlahy - 100 / 80 / 100 mm.
Mimo standardní rozměry, lze obytné kontejnery vyrobit v rozměrech: v délce od 1500 mm do 10500 mm, šířce do 3000 mm, výšce do 3200 mm.
Konstrukce obytných kontejnerů umožňuje ukládání a montáž na sebe, max. do 1+2 poschodí.
Nosná ocelová konstrukce obytného kontejneru:
je tvořena ocelovým rámem, svařeným z profilů tloušťky 3 a 4 mm s 8 svařovanými rohovými prvky s otvory pro manipulaci. Ocelový rám je opatřen antikorozním nátěrem. Standardně obytný kontejner není opatřen otvory pro manipulaci vysokozdvižným vozíkem.
Podlaha: pozinkovaný plech 0,55 mm vsazený do ocelového rámu, minerální vlna tloušťky 100 mm, uložená mezi příčnými ocelovými výztuhami, PE – fólie (parotěsná zábrana), voděodolná dřevotřísková deska V 100, tloušťky 19 mm nebo cementotřísková deska, tloušťky 20mm (pro kontejnery se sprchou), PVC podlahová krytina - mramorovaná, tloušťka 1,4 mm. Nosnost (zatížení) podlahy: standardně 2,5 kN/m2.
Stěny: lakovaný trapézový pozinkovaný plech, tloušťky 0,55 mm, minerální vlna tloušťky 80 mm, uložená mezi příčnými ocelovými výztuhami, dřevěné hranoly (přerušení tepelného mostu ocelové konstrukce), PE – fólie (parotěsná zábrana), bílá laminovaná dřevotřísková deska, tl. 10 mm, vsazená do plastových profilů bílé barvy. U podlahy a stropu okopové lišty bílé barvy.
Vnitřní příčky: (v případě, že je kontejner vnitřní příčky obsahuje) bílá laminovaná dřevotřísková deska tl. 10 mm, vsazená do plastových profilů bílé barvy. U podlahy a stropu okopové lišty bílé barvy.
Střecha: nelakovaný pozinkovaný trapézovaný plech tl. 0,8 mm, minerální vlna tloušťky 100 mm, dřevěné hranoly (přerušení tepelného mostu ocelové konstrukce), PE – fólie (parotěsná zábrana), podhled laminovaná dřevotřísková deska tl. 10 mm, bílá, vsazená do plastových profilů. Svod vody PVC trubkami v rohových sloupech. Nosnost (zatížení): standardně 1,5 kN/m2.
Vnější dveře:
- ocelové - pozinkovaný plech, tepelně izolované 810x1970 mm, např. typ ZK-1,
oboustranně lakované, z vnější strany v barvě kontejneru, z vnitřní strany bílé,
opatřené kováním klika/klika a zámkovou vložkou FAB,
na přání lze vnější dveře opatřit pozinkovanou mříží 900x2000 mm.
Vnitřní dveře:
- dřevěné standardní, plné, bílé 800x1970 mm nebo 900x1970 mm
- dřevěné standardní, plné, bílé 600x1970 mm
Vnitřní dveře jsou opatřené kováním klika/klika a vložkou, nebo WC kováním a vložkou.
Okna: plastová, s izotermickým sklem U = 1,0W/m2K, bílá,
- okno jednokřídlé, otvíravé, sklopné 900x1200mm, nebo 1200x1200 mm,
volitelně opatřené vnitřní hliníkovou žaluzií, venkovní plastovou roletou nebo pozinkovanou mříží
- okno dvoukřídlé, otvíravé, sklopné 1800x1200mm,
volitelně opatřené vnitřní hliníkovou žaluzií, venkovní plastovou roletou nebo pozinkovanou mříží
Obytný kontejner může být osazen také okny s pevným zasklením nebo kombinovanými okny.
Jiné rozměry nebo barevné provedení rámů na přání zákazníka.
Elektroinstalace: 3x400/240V, 50 Hz, TN-S, dle ČSN 33 2000 nebo DIN,
tažená ve stěnách kontejneru, s nástěnným rozvaděčem, zapuštěnými vypínači a zásuvkami.
- nástěnná rozvodnice 8 nebo 12 modulů,
- proudový chránič 40/4/003, dI=30mA,
- jističe: (orientačně)
- světelný okruh, 10A/B
- zásuvkový okruh 240V, 16A/B (Z1)
- zásuvkový okruh 240V, 16A/B (ZT1) pro topení
- vypínače a zásuvky, dle ČSN nebo DIN (1x vypínač, 3x jednoduchá zásuvka)
- svítidla zářivková 1x36W nebo 1x58W, s krytem, např. OMS PlastM
Přívod elektrického proudu do obytného kontejneru je realizován jednou z následujících možností:
- venkovní plastová krabice Spels Abox, opatřená svorkovnicí,
- nástěnná venkovní přívodka a zásuvka CEE 5x32A,
- kabelová přívodka a zásuvka CEE 5x32A instalovaná v zapuštěné plastové krabici
Vytápění:
Kontejnery mohou být vybaveny závěsným stěnovým elektrickým konvektorem 750 – 2000W
s vestavěným termostatem, se samostatným jištěním a samostatnou zásuvkou.
Odvětrávání:
Standardně jsou kontejnery odvětrávány okny (viz. položka okna).
Volitelně lze obytný kontejner opatřit nuceným odvětráváním - ventilátorem.
Povrchová úprava:
Standardně je obytný kontejner lakován v jednobarevném provedení, v odstínu na přání zákazníka, dle vzorníku barev RAL.
Doporučované odstíny, např.: šedobílá, RAL 9002, světle šedá, RAL 7035, modrá, RAL 6011, bílá, RAL 9010
Na přání lze kontejnery lakovat ve vícebarevném provedení, např. ve firemních barvách, s nástřikem loga či jiného obrazce.
Vzorník barev RAL
je celosvětově uznávaný standard pro stupnici barevných odstínů, který se používá především v průmyslové výrobě interiérových či exteriérových nátěrových hmot a stavebnictví obecně. Vzorník barev RAL »
(zdroj: http://www.wikipedia.org)
Provedení obytných kontejnerů:
Obytné kontejnery vyrábíme s vysokou pečlivostí a kvalitou, z materiálů a výrobků renomovaných firem. Všechny používané materiály, vybavovací předměty a zařízení jsou vyrobena v EU nebo jsou v ČR běžně dostupná.
Zvláštní provedení obytného kontejneru:
Obytné kontejnery vyrábíme zakázkovým způsobem, podle konkrétního požadavku zákazníka. Kontejnery je možné bez omezení libovolně modifikovat. Rozměry, izolace, provedení zádveří s dveřmi, zádveří bez dveří, dělící stěna s dveřmi, dělící stěna bez dveří, počet dveří a oken, vnitřní okenní hliníková žaluzie, vnější plastová roleta, pozinkovaná okenní mříž, elektroinstalace, povrchová úprava (vícebarevné provedení apod.), vnitřní vybavení (cena na požádání), doplňkové ocelové konstrukce (schody, plošiny, střecha atd. – cena na požádání).
Montáž a manipulace obytného kontejneru:
Kontejnery se pokládají na rovný zpevněný podklad nebo základové pásy, či patky. Na manipulaci je potřebný jeřáb nebo vysokozdvižný vozík, v případě kontejneru pro tento účel vybaveným otvory pro ližiny.
Ke kontejneru je nutné přivést samostatně jištěný přívod elektrické energie a provést přizemnění dle ČSN nebo DIN. Kontejner není nutné vybavovat hromosvodem, nevyžadují-li to jiné předpisy.
Prostřednictvím našeho ukázkového katalogu si můžete vybrat některé z dispozičních řešení, které je možné následně upravit podle Vašeho požadavku. Také nám můžete zaslat Váš návrh řešení. Návrh překreslíme a vypracujeme cenovu kalkulaci. Naši obchodní specialisté jsou připraveni Vám pomoci s technickým řešením podle Vašich potřeb.
Ke stažení:
Všeobecný technický popis kontejnerového modulu obytného kontejneru 
(Text není popisem konkrétního typu obytného kontejneru, slouží pro projektanty k editaci)
Žádné fotografie nenalezeny.